單面板百葉
單面板百葉介紹
單面板百葉面板采用鋁合金板材為基材,再經過數控折彎等技術成型單層鋁合金葉片,適用于各種公共建筑平面、立面和斜面的建筑遮陽。配合建筑裝飾,是大型建筑室內、外遮陽的選擇之一。沖孔面可增加建筑立體效果、通風性好、既能遮擋強光又能合理采光防止眩光,沖孔百葉自重輕、隔熱性強、裝飾性好,廣泛用于建筑頂面及外遮陽隔熱通風、裝飾等。
單面板百葉特點
節能- 通過反射陽光,更好的阻礙了陽光直射到建筑物內,起到很好的遮陽節能效果,節能效果達到40%左右。
視野- 隱藏式連桿驅動,調光性能方面,葉片轉角在0到105度可調;葉片在90度時有最大通風量,葉片在15到25度時,外面看不到室內,從而提升隱秘的效果。
裝飾 -葉片呈單面弧形,開孔率20%,造型優美,能豐富建筑師的設計風格。
材料- 采用鋁合金、高分子PCTC材料作葉片,強度高、維護少,葉片雙層中空結構,高張力、高強度,完全關閉時兼具部分防盜功能同時能起到保護玻璃幕墻的作用。

單面板百葉應用尺寸
單面板百葉結構圖

單面板百葉產品結構圖
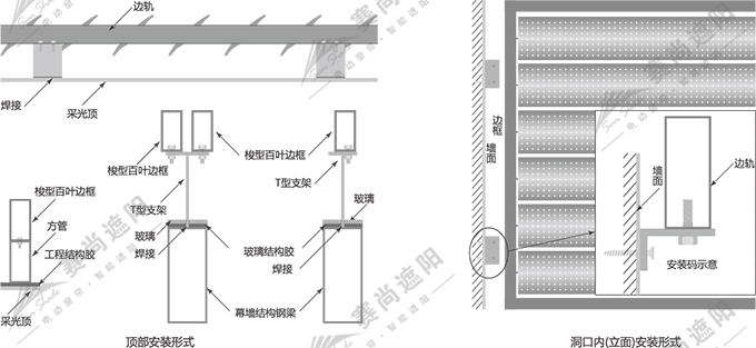
單面板百葉安裝方式

單面板百葉安裝方式
單面板百葉功能

單面板百葉功能
單面板百葉電機選擇
本產品的傳動方式應采用推桿電機。如產品需要配合消防聯動功能。根據驅動面積選擇相應扭力的電機,建議選擇24V推桿電機。根據產品尺寸扭力應不小于25Nm。推薦采用尚飛Rodeo系列或杜亞DJ54系列。

單面板百葉推桿電機參數
單面板百葉葉片選擇
單面板百葉有300、350、450、600等多種規格可以選擇。葉片形式分為機翼型單面板葉片、雙面組合式葉片、單面板葉片。

單面板百葉技術參數
單面板百葉應用場所
單面板百葉主要用于建筑頂部或立面玻璃幕墻,如大型圖書館立面玻璃幕墻,大型商場立面/頂面玻璃幕墻等。
單面板百葉實景圖

單面板百葉實景圖
電動遮陽百葉系列產品
梭形百葉 平板百葉 歐式百葉 單面板百葉 SD96升降調光百葉
與戶外電動百葉相關的文章





