電動垂直簾
電動垂直簾介紹
垂直簾隨意轉向180度,光線自然和諧,簾片垂直、平整、間隔均勻、線條整潔明快,裝飾效果極佳。布垂直簾具有抗老化、不退色、隔熱、任意調節光線等特點。鋁合金、PVC垂直簾具有易清洗、耐腐蝕、阻燃等特點。
電動垂直簾為落地窗門提供最精簡的設計意念,有多款布料及鋁質簾片供選擇。根據材料的構成分類有纖維垂簾,塑料(PVC)垂簾及鋁合金垂簾。纖維簾片質地柔軟富有彈性,經過防水防污防老化處理,能夠有效的防潮,防太陽紫外線,無老化,無磨損,不易褪色的優點,同時兼顧良好的隔音效果,透過光線柔和不刺眼,使人倍感溫馨;塑料(PVC)垂簾簾片表面光潔度良好,給人整齊,優雅,大方的視覺效果,具有易清洗,不易褪色,阻燃,隔熱,耐高溫的特性。根據室內裝飾的格調,個人的性格愛好,可選擇不同顏色及不同材料的簾片。

電動垂直簾開啟方向

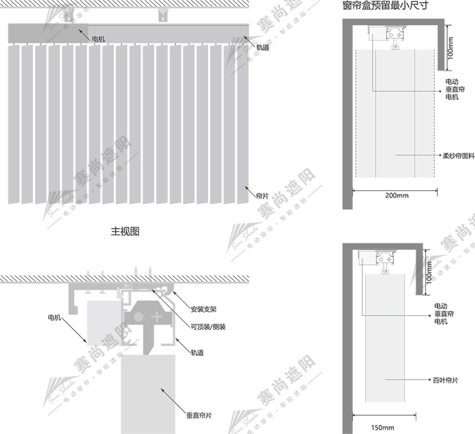
電動垂直簾應用尺寸
電動垂直簾結構圖

電動垂直簾產品結構圖
電動垂直簾安裝方式

電動垂直簾安裝方式
備注:以上參數信息僅供參考,具體以實際現場為準,如有技術問題請咨詢我公司相關技術人員。
電動垂直簾電機選擇
垂直簾特殊的傳動機構形式,需要選擇專用類型的電機。根據產品的規格選擇適用的電機型號及扭力,可采用杜亞DK30/DK40系列。

電動垂直簾電機選擇 僅供參考
電動垂直簾面料選擇
由于垂直簾的傳動機構特殊性,面料可以有多種選擇,陽光面料、柔紗簾面料、布藝面料、木質簾片、鋁合金簾片等多種形式。日常使用較多的以柔紗簾面料較多。配合垂直簾傳動機構,柔紗簾面料顯得格外優雅,使室內空間更加簡約。推薦采用玻纖材質粗紋系列陽光面料,面料硬朗,不易變形,立體感更強。

電動垂直簾面料選擇
電動垂直簾實景圖

電動垂直簾實景圖
了解更多電動窗飾信息
4、電動窗簾的保養





