PTS折疊式天棚簾
PTS天棚簾介紹
PTS折疊式天棚簾是固定在室內采光的頂部或斜側面玻璃采光窗框可以收放的遮陽系統,即雙軌平動系統。它可以是直線,也可以是弧形,運用得當可以基本和建筑曲線相吻合,即遮陽實用又保持建筑設計的風格,天棚簾完全展開后,面料呈現均勻的波浪效果。天棚簾導軌是采用烤漆型導軌并選用同步導軌電機,操作簡單工作平穩。履帶是由碳素纖維加鋼絲等合成材料制成。在-40攝氏度至+80攝氏度的溫度范圍內,其冷收縮與熱膨脹系數都不大于1%。
電動天棚簾系列產品
FCS電動天棚簾 FSS電動天棚簾 FTS電動天棚簾 PTS電動天棚簾
PTS天棚簾系統參數
系統:雙軌平動系統
動力:巨力2雙輸出電機,確保履帶運行速度一致,保證天棚簾同步開合。
傳動方式:履帶式傳動
面料選擇:卷簾面料
開合方式:單開、雙開
控制方式:內置無線電控制器,采用無線電遙控方式,亦可實現及智能控制方式
PTS天棚簾結構圖

PTS折疊式天棚簾產品結構圖
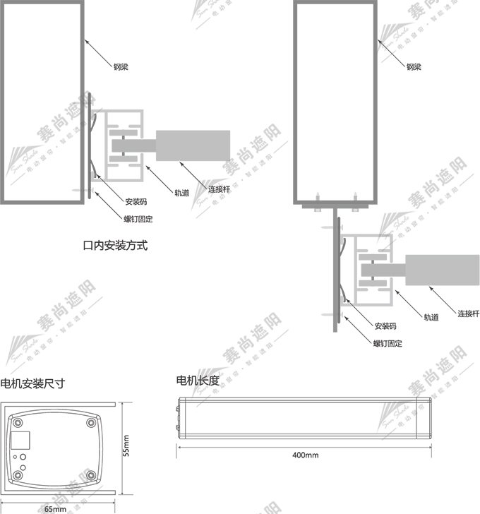
PTS天棚簾安裝方式

備注:以上參數信息僅供參考,具體以實際現場為準,如有技術問題請咨詢我公司相關技術人員。
PTS天棚簾示意圖

PTS天棚簾電機選擇
PTS系統采用專用的方形電機,因結構采用導軌設計,并且面料無張力,故電機扭矩不小于2Nm即可。但考慮電機扭矩及軌道等綜合因素,總重量不應超過50Kg。推薦采用杜亞HA82E系列電機。

PTS天棚簾電機選擇僅供參考
PTS天棚簾面料選擇
PTS電動遮陽簾系統無張力存在,在選擇面料時對于面料的抗拉強度性能要求可降低。選擇面料顏色時盡量選擇淺色面料,可以反射光線,從而且更好的起到遮陽不遮光的效果。

PTS天棚面料選擇
PTS天棚簾應用場所
中小型的遮陽場所,廣泛應用于民用和商用場所,如高級住宅、花棚、玻璃屋、咖啡館等處,可用來調光遮陽,柔和進入室內的光線,保持室內溫度,改善采光效果等。
PTS天棚簾實景圖

PTS天棚簾實景圖

- 唐山鋼鐵集團遮陽工程
- 應用產品:PTS折疊式天棚簾





